ads banner
-
/
4
ID: AD47559 - RUMAH DIJUAL

Rumah siap huni Kramat Jati Jakarta Timur promo 650 juta

Kramat Jati Kota Jakarta Timur Dki Jakarta
Rp 650 Juta Rp 5.73 Juta / bulan
70m2
2
2
0
Tipe
RUMAH DIJUAL
Luas Bangunan
70m2
Luas Tanah
35m2
PSM
Rp 18,571,428.57 per m2
Kondisi Bangunan
baru
Menghadap
Jumlah Lantai
2.00
Floor Location
-
Sertifikat
lainnya
ID Listing
47559
Terdaftar pada
4 bulan yang lalu
Interior
tak berperabot
Kamar Tidur
2
Kamar Mandi
2
Kamar Pembantu
0
Garasi
0
Carport
1
Saluran Telepon
0
Listrik
1300
Air Pam
Ya
Air Tanah
Ya
Jalur Mobil
1

Detail Properti

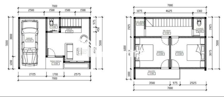
PROMO AKHIR TAHUN HANYA 650 JT!! . Rumah 2 Lantai Siap Huni di Condet – Jakarta Timurf . LT 35 m² LB 70 m² 2 KT 2 KM Carport 1 Mobil Legalitas AJB Jet Pump Listrik 1300W Bangunan 2025 . Dekat Rindam Jaya, PGC Cililitan, RS Pasar Rebo, AEON Tanjung Barat . Unit tinggal 1! Lokasi strategis & akses mudah . Segera hubungi sekarang! Wa 0822-3419-3315 . Follow IG @info.kprsyariah Dapatkan berbagai info properti Jabodetabek lainnya

Fasilitas & Fasilitas Sekitar

Fasilitas Indoor Outdoor
  • Balkon
  • Teras Terbuka
  • Teras
Fasilitas Lainnya
  • Keamanan 24 Jam

Perkiraan Angsuran

Perbarui rincian di bawah ini untuk menghitung pembayaran pinjaman rumah Anda

Perkiraan Angsuran Bulanan
Rp 5.725.648per bulan
Rp 520.000.000 Pokok pinjaman Rp 854.155.495 Bunga
Harga
Rp 650.000.000
Jumlah Pinjaman
Rp
Jangka Waktu Pinjaman
tahun
Suku Bunga
%
Kalkulator KPR